Capannone in affitto

Forlimpopoli, Via dell'artigiano
€ 4.500 / mese
3 locali 3 locali
1143 Mq 1143 Mq
2 bagni 2 bagni

Capannone in affitto

Forlimpopoli, Via dell'artigiano

Descrizione annuncio

- Forlimpopoli -

Proponiamo in locazione un ampio capannone di 1143 mq, ideale per diverse attività produttive o di stoccaggio. Costruito nel 1986, l'immobile si sviluppa su più livelli:

- PIANO SEMINTERRATO troviamo un locale grande di 358,34mq con 3m di H +locale deposito collegato al locale grande di 127,78mq.

- PIANO RIALZATO troviamo un locale di 384,55mq unico ma con altezze diverse, parte bassa è di 3,85h mentre la parte in doppio volume è di 7,45h.

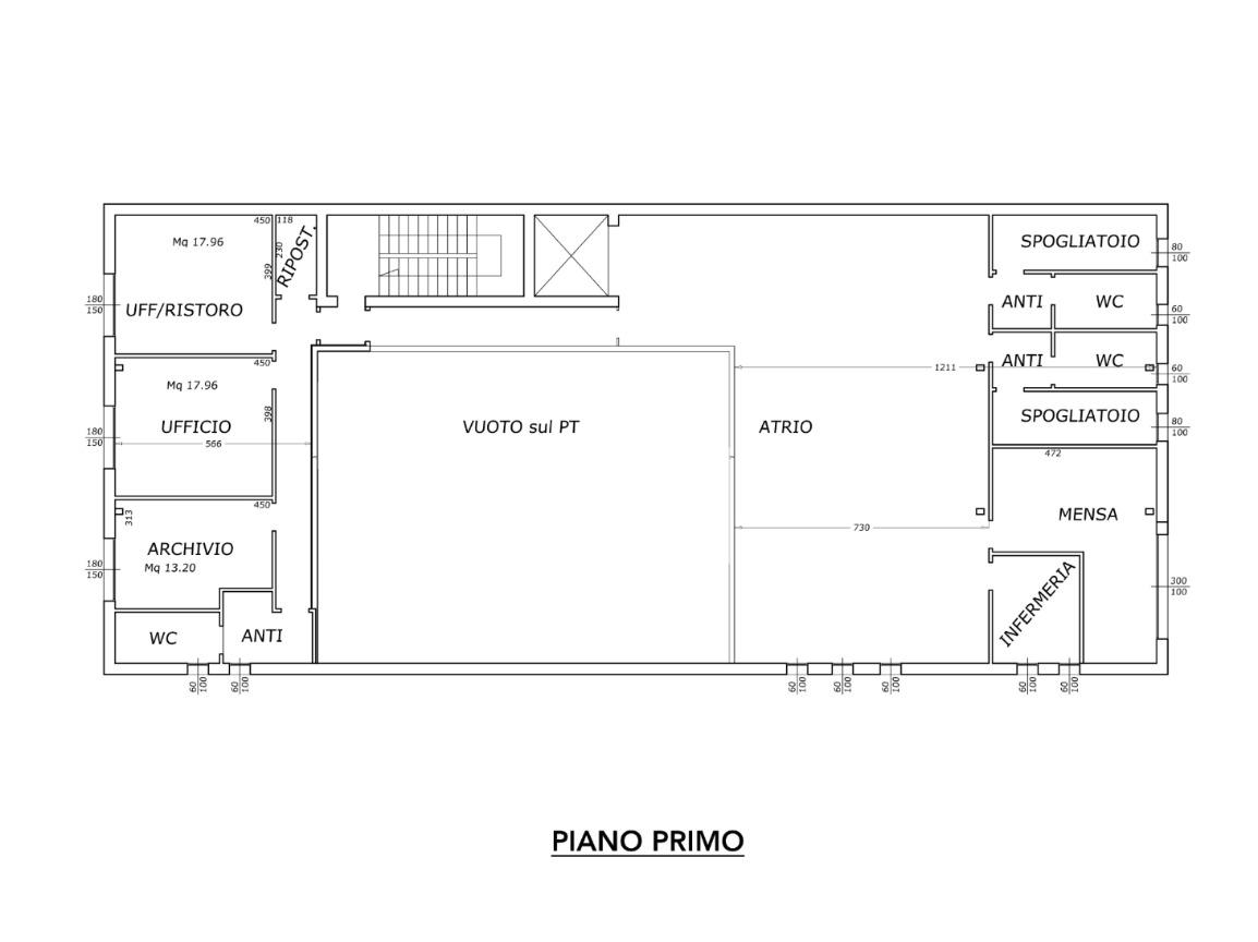
-PIANO PRIMO al primo piano troviamo 3 locali uffici,un bagno ed un locale di ripostiglio, un ballatoio che porta agli spogliatoi (1 per genere),un locale mensa,infermieria e zona ristoro il tutto dentro 272,88 mq .

- Esternamente a livello a livello del piazzale sono presenti due tettoie areate adiacenti e direttamente comunicanti,utilizzabili come deposito. Tettoia lato destro con superfice pari 106,85mq. Tettoia retro capannone con superfic e pari 98,30mq.

La struttura è progettata per garantire efficienza e praticità, con ampie aree che possono essere adattate alle specifiche esigenze operative.

La posizione strategica consente un facile accesso alle principali vie di comunicazione, facilitando il trasporto e la logistica. L'immobile rappresenta una soluzione interessante per chi cerca un ambiente di lavoro spazioso e ben organizzato.

PER INFORMAZIONI O FISSARE UN APPUNTAMENTO:

Tel. 329 3884201 (rif. Davide)

Cell. 327 2207674 (rif. Davide)

Email:

Mostra tutto

Nelle vicinanze

Trasporto pubblico Trasporto pubblico
Forlimpopoli Bertinoro
Forlimpopoli Bertinoro
950 m
Villa Selva
Villa Selva
1,2 Km
Trasporto pubblico
970 m
Ricariche auto elettriche Ricariche auto elettriche
Forlimpopoli Paolucci | EnelX
980 m
Forlimpopoli Pertini | EnelX
1,3 Km
Farmacia Farmacia
Farmacia Dottor Tognoli
1,0 Km
Ospedali Ospedali
Ospedali
960 m
Supermercati Supermercati
Matteini
660 m
Conad Giardino
980 m
A&O
1,4 Km
Negozi Negozi
Pescheria
630 m
Negozi
860 m
Frutta Piu'
3,0 Km
Bar Bar
Majenta Cafè
560 m
Bar Agip
780 m
Bar pasticceria Maltoni
1,1 Km
Cobà
1,2 Km
Bar
2,5 Km
Ristoranti Ristoranti
Rosa dei Venti
210 m
Pizzeria Malù
620 m
Pizzeria Domus
810 m
Casa Artusi
890 m
Ristoranti
910 m
Mostra tutto

Caratteristiche

Rif.:
61172249
Piano:
3 di 3 (Piano su più livelli)
Box:
1
Condizionamento:
Autonomo
Ascensore:
No
Riscaldamento:
Autonomo
Mostra tutto
Prezzo Prezzo
€ 4.500 / mese
Spese annue Spese annue
€ 0

Classe Energetica

G
G
G
G
G
G
G
G
G
Anno di costruzione:
1986
Riscaldamento:
Autonomo
Tipo impianto:
A radiatori
Tipo alimentazione:
Gasolio

Ti interessa visionare l'immobile?

Fissa un appuntamento  Fissa un appuntamento

Richiedi informazioni

Clicca su Leggi per aprire l'informativa
* Questi campi sono obbligatori
Affiliato
Immobiliare Forli' Impresa Srl
Prossima Apertura, 47122 Forlì (FC)

Il nostro staff


  • Asia Casadei
    Coordinatrice

  • Davide Marcucci
    Affiliato

  • Simone Ostolani
    Affiliato

  • Erik Abbondanza
    Affiliato
Prossima Apertura, 47122 Forlì (FC)
Zona: Forlì-Forlimpopoli-Meldola-Predappio-Castrocaro-Civitella di Romagna-Galeata-Rocca S.Casciano
Mostra su mappa
Orari: Dal lunedì al venerdì dalle ore 9 alle ore 13 e dalle ore 15.30 alle ore 20. Sabato dalle ora 9 alle ore 13
Affiliato
Immobiliare Forli' Impresa Srl
Prossima Apertura, 47122 Forlì (FC)

2026 Tecnocasa Franchising S.p.A. - P. IVA 08365160152 - Via Monte Bianco 60/A 20089 Rozzano (MI). Ogni agenzia ha un proprio titolare ed è autonoma. Privacy policy | Policy utilizzo | Cookie policy