Capannone in vendita

Forlì, Via Campo dei Fiori - Bagnolo
€ 2.500.000
3 locali 3 locali
2000 Mq 2000 Mq
3 bagni 3 bagni

Capannone in vendita

Forlì, Via Campo dei Fiori - Bagnolo

Descrizione annuncio

- Forlì -

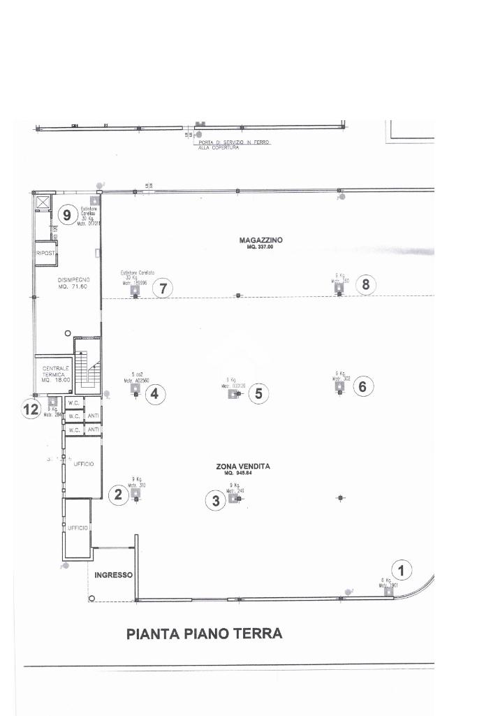
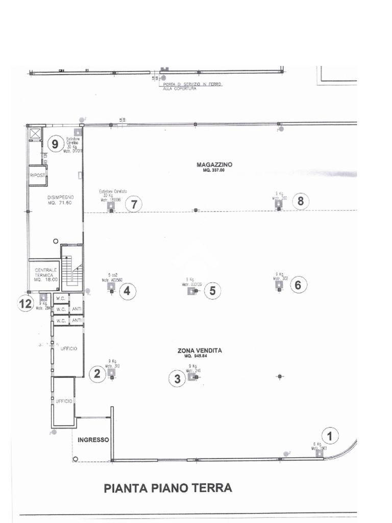
CAPANNONE INDUSTRIALE 1912 m² + PIAZZALE 3.500 m² .
Proponiamo in vendita/locazione capannone industriale di circa , soluzione ideale per attività produttive , di stoccaggio e commerciali.

Caratteristiche principali: - Ampia area operativa open space • Zona uffici funzionale • Montacarichi interno • Piano primo ad uso deposito.


Spazi esterni: • Ampio piazzale di circa 3.500 m², perfetto per manovra mezzi pesanti, carico/scarico e parcheggio .

Portone carraio alto 4 metri • Portone dedicato al carico merci • Due ingressi indipendenti per camion e bilici

Punti di forza:Grande area esterna sfruttabile Accessibilità eccellente per mezzi pesanti Spazi versatili e ben organizzati.

Soluzione ideale per aziende che cercano funzionalità, spazio e facilità operativa in un ottima posizione.

Mostra tutto

Nelle vicinanze

Trasporto pubblico Trasporto pubblico
Trasporto pubblico
2,1 Km
Ricariche auto elettriche Ricariche auto elettriche
Concessionaria JLR Romagnauto Forlì
1,3 Km
Forli Supercharger
1,7 Km
IONITY - Forlì CC Punta di Ferro
1,7 Km
Farmacia Farmacia
Parafarmacia Conad
1,4 Km
Farmacia Comunale Punta di Ferro
1,6 Km
Farmacia
2,8 Km
Ospedali Ospedali
Ospedale Privato "Primus", gruppo Villa Maria
2,0 Km
Supermercati Supermercati
Conad
1,4 Km
Iper
1,5 Km
Birrino - birra vino cibo
2,9 Km
Negozi Negozi
Globo
1,3 Km
Ristoranti Ristoranti
Le Querce
1,9 Km
Osteria L'amorosa
2,7 Km
Pizzeria ristorante Da gusto
2,8 Km
Mostra tutto

Caratteristiche

Rif.:
61193385
Piano:
2 di 2 (Piano terra)
Posti auto:
5
Condizionamento:
Autonomo
Ascensore:
No
Riscaldamento:
Assente
Mostra tutto
Prezzo Prezzo
€ 2.500.000
Rata mutuo Rata mutuo
€ 11.866 / mese
Proponi il tuo prezzoProponi il tuo prezzo

Classe Energetica

Questo immobile è esente da classe energetica
Anno di costruzione:
1976
Riscaldamento:
Assente

Ti interessa visionare l'immobile?

Fissa un appuntamento  Fissa un appuntamento

Richiedi informazioni

Clicca su Leggi per aprire l'informativa
* Questi campi sono obbligatori

Calcola il tuo mutuo

Semplice e senza impegno
Anticipo

( % )
Mutuo

( % )

pochi semplici passi

inserisci i tuoi dati
Questionario completato
Grazie per aver richiesto un appuntamento senza impegno con un nostro Consulente del Credito e Assicurativo.

Hai inserito correttamente tutti i dati necessari e a breve riceverai una e-mail con un link da convalidare per inviare i tuoi dati.
Affiliato
Immobiliare Forli' Impresa Srl
Prossima Apertura, 47122 Forlì (FC)

Il nostro staff


  • Asia Casadei
    Coordinatrice

  • Davide Marcucci
    Affiliato

  • Simone Ostolani
    Affiliato

  • Erik Abbondanza
    Affiliato
Prossima Apertura, 47122 Forlì (FC)
Zona: Forlì-Forlimpopoli-Meldola-Predappio-Castrocaro-Civitella di Romagna-Galeata-Rocca S.Casciano
Mostra su mappa
Orari: Dal lunedì al venerdì dalle ore 9 alle ore 13 e dalle ore 15.30 alle ore 20. Sabato dalle ora 9 alle ore 13
Affiliato
Immobiliare Forli' Impresa Srl
Prossima Apertura, 47122 Forlì (FC)

2026 Tecnocasa Franchising S.p.A. - P. IVA 08365160152 - Via Monte Bianco 60/A 20089 Rozzano (MI). Ogni agenzia ha un proprio titolare ed è autonoma. Privacy policy | Policy utilizzo | Cookie policy