Attività in vendita

Forlì, Piazzale porta Ravaldino
€ 35.000
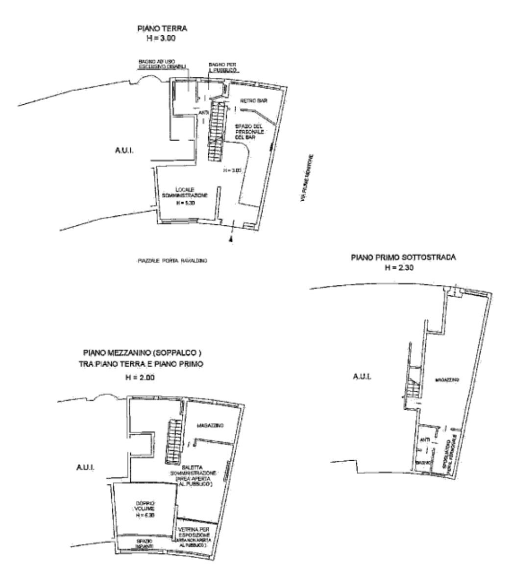
2 locali 2 locali
143 Mq 143 Mq
2 bagni 2 bagni

Attività in vendita

Forlì, Piazzale porta Ravaldino

Descrizione annuncio

- Forlì -

In posizione centrale e altamente trafficata, proponiamo attività di bar in vendita, ideale per chi desidera avviare o ampliare la propria attività con un investimento contenuto.

Il locale si presenta accogliente e funzionale, con buona visibilità su strada e clientela fidelizzata. Punto di forza è la parte esterna, perfetta per la stagione estiva, aperitivi e momenti di aggregazione, che permette di incrementare notevolmente il volume di lavoro.

Prezzo attività: € 35.000
Canone di locazione: € 1.200/mese

Soluzione adatta a giovani imprenditori, gestione familiare o a chi desidera un’attività già pronta e operativa fin da subito.

PER INFORMAZIONI O FISSARE UN APPUNTAMENTO:

Tel. 329 3884201 (rif. Davide)

Cell. 327 2207674 (rif. Davide)

Email:

Mostra tutto

Nelle vicinanze

Trasporto pubblico Trasporto pubblico
stazione di Forlì
stazione di Forlì
1,8 Km
Centro Studi (Moro) A
Centro Studi (Moro) A
750 m
Centro Studi (Moro) B
Centro Studi (Moro) B
780 m
Ricariche auto elettriche Ricariche auto elettriche
Eneldrive San Domenico
600 m
Eneldrive Campus di Forlì
630 m
Eneldrive Palazzo Di Giustizia
840 m
Eneldrive Mazzini
1,0 Km
Eneldrive Stazione FS
1,8 Km
Scuole Scuole
Istituto Tecnico per Geometri " L. B. Alberti"
620 m
Scuola "Diego Fabbri"
640 m
Campus Universitario di Forlì
640 m
Istituto Tecnico Commerciale "Matteucci"
710 m
Centro Studi
730 m
Farmacia Farmacia
Farmacia Natalini
480 m
Farmacia Schibuola
830 m
Farmacia Lombardi
830 m
Farmacia Comunale
890 m
Farmacia Camporesi
940 m
Ospedali Ospedali
Ospedali Privati Forlì "Villa Serena"
250 m
Pronto Soccorso
1,7 Km
Ospedale Morgagni-Pierantoni
1,8 Km
Padiglione Allende
1,8 Km
Ospedali Privati Forlì "Villa Igea"
1,8 Km
Supermercati Supermercati
Conad Ravaldino
350 m
Conad Margherita
360 m
Eataly
720 m
inCoop
750 m
Conad City
820 m
Negozi Negozi
Frutta e Verdura
390 m
Abbiagliamento caccia e Pesca Assirelli
420 m
Prenatal
560 m
OVS
720 m
Bottega del Sarto
730 m
Bar Bar
Bar
280 m
La Bottega Alchemica del Bistrò
690 m
Barottica
700 m
3 Sorelle
740 m
Ca' Leoni
760 m
Ristoranti Ristoranti
Ristoranti
80 m
L'Enosteria
420 m
Peter Pan
430 m
Filo d'Olio
440 m
La Mela
530 m
Mostra tutto

Caratteristiche

Rif.:
61185405
Piano:
Basso di 2
Totale piani:
2
Condizionamento:
Autonomo
Ascensore:
No
Riscaldamento:
Autonomo
Mostra tutto
Prezzo Prezzo
€ 35.000
Rata mutuo Rata mutuo
€ 166 / mese
Proponi il tuo prezzoProponi il tuo prezzo

Classe Energetica

Questo immobile è esente da classe energetica
Anno di costruzione:
2002
Riscaldamento:
Autonomo

Ti interessa visionare l'immobile?

Fissa un appuntamento  Fissa un appuntamento

Richiedi informazioni

Clicca su Leggi per aprire l'informativa
* Questi campi sono obbligatori

Calcola il tuo mutuo

Semplice e senza impegno
Anticipo

( % )
Mutuo

( % )

pochi semplici passi

inserisci i tuoi dati
Questionario completato
Grazie per aver richiesto un appuntamento senza impegno con un nostro Consulente del Credito e Assicurativo.

Hai inserito correttamente tutti i dati necessari e a breve riceverai una e-mail con un link da convalidare per inviare i tuoi dati.
Affiliato
Immobiliare Forli' Impresa Srl
Prossima Apertura, 47122 Forlì (FC)

Il nostro staff


  • Asia Casadei
    Coordinatrice

  • Davide Marcucci
    Affiliato

  • Simone Ostolani
    Affiliato

  • Erik Abbondanza
    Affiliato
Prossima Apertura, 47122 Forlì (FC)
Zona: Forlì-Forlimpopoli-Meldola-Predappio-Castrocaro-Civitella di Romagna-Galeata-Rocca S.Casciano
Mostra su mappa
Orari: Dal lunedì al venerdì dalle ore 9 alle ore 13 e dalle ore 15.30 alle ore 20. Sabato dalle ora 9 alle ore 13
Affiliato
Immobiliare Forli' Impresa Srl
Prossima Apertura, 47122 Forlì (FC)

2026 Tecnocasa Franchising S.p.A. - P. IVA 08365160152 - Via Monte Bianco 60/A 20089 Rozzano (MI). Ogni agenzia ha un proprio titolare ed è autonoma. Privacy policy | Policy utilizzo | Cookie policy